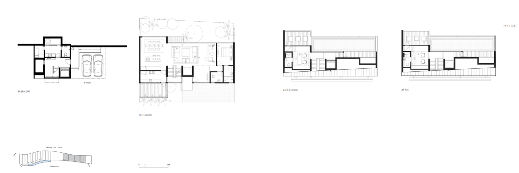
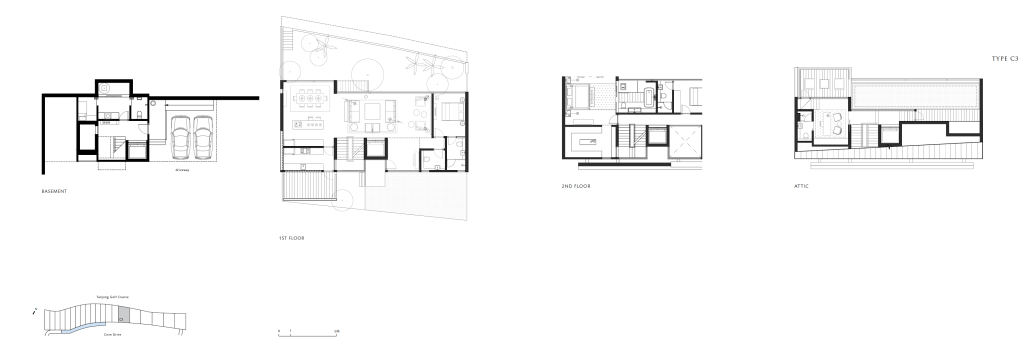
The Green Collection Floor Plan
Click the button above to view & download The Green Collection Floor Plan.
The Green Collection | The Green Collection Price | The Green Collection Showflat
Book An Appointment to view The Green Collection Showflat & get VVIP Discounts (Limited Time), Direct Developer Price, & Hardcopy E-Brochure. Guaranteed with Best Price Possible.
OR
Fill up the form on the right and get a copy of The Green Collectiom Showflat Price, E-Brochure, and Latest Updates!
Strictly no spam policy.








